MONTENEGRO
▲
EN
a small wooden shelter located amidst the rural landscape of the city of montenegro allows the exploring of the impressive visuals of the place and, at the same time, the proposing of studies regarding minimal living and the wood as a building material and construction technique.
as a weekend home for a young couple, the small shelter allows for a place of rest and contemplation in the midst of nature.
located in the highest part of the site, the volume is articulated in order to overlook the best views of the surroundings, directing two large windows to the areas with
Ñ
un pequeño refugio de madera envuelto en el paisaje rural de la ciudad de montenegro permite explorar las impresionantes vistas del lugar y, al mismo tiempo, proponer estudios en relación al habitar mínimo y la madera como material de construcción.
como una casa de fin de semana para una pareja joven, el pequeño refugio permite un lugar de descanso y contemplación en medio a la naturaleza.
ubicado en la parte más alta del terreno, el volumen articulado permite explorar las impresionantes vistas de las cercanías, dirigiendo dos grandes
PT
um pequeno refúgio em madeira localizado em meio à paisagem rural da cidade de montenegro permite explorar as impressionantes visuais do lugar e, ao mesmo tempo, propor estudos em relação ao habitar mínimo e à madeira como material e técnica construtiva.
como uma casa de fim de semana para um jovem casal, o pequeno abrigo permite um lugar de descanso e contemplação em meio à natureza.
implantado na parte mais alta do terreno, o volume é articulado de forma a explorar as melhores vistas do entorno, direcionando duas
EN
a small wooden shelter located amidst the rural landscape of the city of montenegro allows the exploring of the impressive visuals of the place and, at the same time, the proposing of studies regarding minimal living and the wood as a building material and construction technique.
as a weekend home for a young couple, the small shelter allows for a place of rest and contemplation in the midst of nature.
located in the highest part of the site, the volume is articulated in order to overlook the best views of the surroundings, directing two large windows to the areas with broad horizon perspectives.
Ñ
un pequeño refugio de madera envuelto en el paisaje rural de la ciudad de montenegro permite explorar las impresionantes vistas del lugar y, al mismo tiempo, proponer estudios en relación al habitar mínimo y la madera como material de construcción.
como una casa de fin de semana para una pareja joven, el pequeño refugio permite un lugar de descanso y contemplación en medio a la naturaleza.
ubicado en la parte más alta del terreno, el volumen articulado permite explorar las impresionantes vistas de las cercanías, dirigiendo dos grandes ventanales a áreas con amplias perspectivas del horizonte.
PT
um pequeno refúgio em madeira localizado em meio à paisagem rural da cidade de montenegro permite explorar as impressionantes visuais do lugar e, ao mesmo tempo, propor estudos em relação ao habitar mínimo e à madeira como material e técnica construtiva.
como uma casa de fim de semana para um jovem casal, o pequeno abrigo permite um lugar de descanso e contemplação em meio à natureza.
implantado na parte mais alta do terreno, o volume é articulado de forma a explorar as melhores vistas do entorno, direcionando duas grandes janelas para as áreas com amplas perspectivas do horizonte.

MONTENEGRO / © SAUERMARTINS

MONTENEGRO / © SAUERMARTINS

MONTENEGRO / © SAUERMARTINS
the volume is raised off the ground by slender supporting point elements that separate the building from the soil and accommodates it to the topography, preserving the natural profile of the terrain.
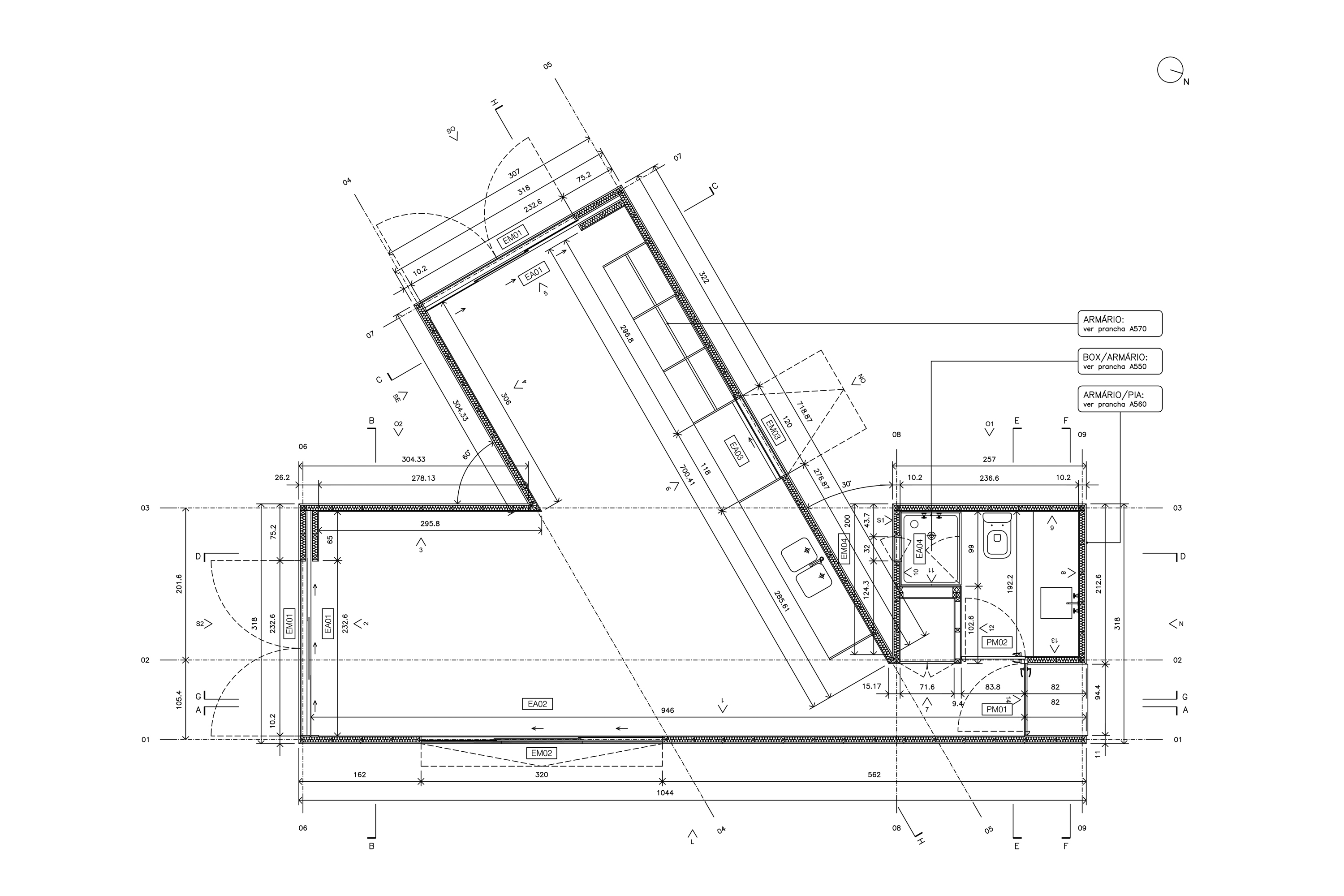
the single, integrated space, with an area of 45 sqm, accommodates a living room with a fireplace, a kitchen, a dining room, a bedroom and a bathroom, in a way that meets the needs of a secluded refuge and, at the same time, provides a compact and functional environment. the openings, of different sizes and proportions, allow framings of the landscape that relates to the internal uses.
el volumen se eleva desde el suelo por delgados elementos puntuales de soporte que separan la construcción del terreno y acomodan el edificio a la topografía, preservando el perfil natural del terreno.
el espacio único e integrado, con una superficie de 45 m², acoge la sala de estar con chimenea, cocina, comedor, dormitorio y baño, con el fin de satisfacer las necesidades de un refugio aislado y, al mismo tiempo, proporcionar un ambiente compacto y funcional. las ventanas, con variados tamaños y proporciones, permiten enmarcar el paisaje según los usos internos.
o volume é elevado do terreno por esbeltos elementos pontuais de apoio que separam a construção do solo e acomodam a edificação à topografia, preservando o perfil natural do terreno.
o espaço único e integrado, com área de 45 m², acomoda sala de estar com lareira, cozinha, jantar, dormitório e banheiro, de forma a atender às necessidades de um refúgio isolado e, ao mesmo tempo, proporciona um ambiente compacto e funcional. as aberturas, de diferentes dimensões e proporções, permitem enquadramentos da paisagem que se relacionam aos usos internos.
broad horizon perspectives.
the volume is raised off the ground by slender supporting point elements that separate the building from the soil and accommodates it to the topography, preserving the natural profile of the terrain.
the single, integrated space, with an area of 45 sqm, accommodates a living room with a fireplace, a kitchen, a dining room, a bedroom and a bathroom, in a way that meets the needs of a secluded refuge and, at the same time, provides a compact and functional environment. the openings, of different sizes and proportions, allow framings of the landscape that relates to the internal uses.
ventanales a áreas con amplias perspectivas del horizonte.
el volumen se eleva desde el suelo por delgados elementos puntuales de soporte que separan la construcción del terreno y acomodan el edificio a la topografía, preservando el perfil natural del terreno.
el espacio único e integrado, con una superficie de 45 m², acoge la sala de estar con chimenea, cocina, comedor, dormitorio y baño, con el fin de satisfacer las necesidades de un refugio aislado y, al mismo tiempo, proporcionar un ambiente compacto y funcional. las ventanas, con variados tamaños y proporciones, permiten enmarcar el paisaje según los usos internos.
grandes janelas para as áreas com amplas perspectivas do horizonte.
o volume é elevado do terreno por esbeltos elementos pontuais de apoio que separam a construção do solo e acomodam a edificação à topografia, preservando o perfil natural do terreno.
o espaço único e integrado, com área de 45 m², acomoda sala de estar com lareira, cozinha, jantar, dormitório e banheiro, de forma a atender às necessidades de um refúgio isolado e, ao mesmo tempo, proporciona um ambiente compacto e funcional. as aberturas, de diferentes dimensões e proporções, permitem enquadramentos da paisagem que se relacionam aos usos internos.

MONTENEGRO / © SAUERMARTINS

MONTENEGRO / © SAUERMARTINS
the refuge meets the demand for occasional use, being completely enclosed with wood panels that not only provide security, but configure a monolithic volume, totally closed when not in use, but widely connected with the surroundings when being occupied.
by exploring traditional wood construction techniques, the project aims to generate a simple and cost-effective execution process using wood pieces that can be easily assembled with local labor.
the dark aesthetic of the external surfaces refers to the traditional treatment of the wooden houses usually built in the region, and contrasts with the atmosphere of the internal space with natural wood as the only covering.
el refugio responde a la demanda de uso ocasional, cerrándose completamente con paneles de madera que no solo brindan seguridad, sino que configuran un volumen monolítico, totalmente cerrado y hermético cuando no está en uso, pero ampliamente conectado con el entorno cuando ocupado.
a través de la exploración de técnicas tradicionales empleadas en construcciones de madera, el proyecto tiene como objetivo generar un proceso de construcción simple y factible mediante el uso de componentes de madera que se pueden ensamblar fácilmente en el sitio con mano de obra local.
el aspecto oscuro de las superficies exteriores hace referencia al tratamiento tradicional de las casas de madera habitualmente construidas en la región y contrasta con la atmósfera en madera natural.
o refúgio atende à demanda de uso ocasional, fechando-se completamente com painéis de madeira que não apenas propiciam segurança,
mas configuram um volume monolítico, totalmente fechado quando não se está, mas amplamente conectado com o entorno quando ocupado.
através da exploração de técnicas tradicionais de construção em madeira, o projeto visa gerar um processo de execução simples e com custo reduzido, utilizando peças moduladas que podem ser facilmente montadas com mão de obra local.
o aspecto escuro das superfícies externas faz referência ao tratamento tradicional das casas de madeira geralmente construídas na região e contrasta com a atmosfera interior em madeira natural.
the refuge meets the demand for occasional use, being completely enclosed with wood panels that not only provide security, but configure a monolithic volume, totally closed when not in use, but widely connected with the surroundings when being occupied.
by exploring traditional wood construction techniques, the project aims to generate a simple and cost-effective execution process using wood pieces that can be easily assembled with local labor.
the dark aesthetic of the external surfaces refers to the traditional treatment of the wooden houses usually built in the region, and contrasts with the atmosphere of the internal space with natural wood as the only covering.
el refugio responde a la demanda de uso ocasional, cerrándose completamente con paneles de madera que no solo brindan seguridad, sino que configuran un volumen monolítico, totalmente cerrado y hermético cuando no está en uso, pero ampliamente conectado con el entorno cuando ocupado.
a través de la exploración de técnicas tradicionales empleadas en construcciones de madera, el proyecto tiene como objetivo generar un proceso de construcción simple y factible mediante el uso de componentes de madera que se pueden ensamblar fácilmente en el sitio con mano de obra local.
el aspecto oscuro de las superficies exteriores hace referencia al tratamiento tradicional de las casas de madera habitualmente construidas en la región y contrasta con la atmósfera en madera natural.
o refúgio atende à demanda de uso ocasional, fechando-se completamente com painéis de madeira que não apenas propiciam segurança, mas configuram um volume monolítico, totalmente fechado quando não se está, mas amplamente conectado com o entorno quando ocupado.
através da exploração de técnicas tradicionais de construção em madeira, o projeto visa gerar um processo de execução simples e com custo reduzido, utilizando peças moduladas que podem ser facilmente montadas com mão de obra local.
o aspecto escuro das superfícies externas faz referência ao tratamento tradicional das casas de madeira geralmente construídas na região e contrasta com a atmosfera interior em madeira natural.
MONTENEGRO / © SAUERMARTINS
year
2013
place
montenegro, rs, brasil
authors
cássio sauer, elisa t martins
team
lucas schneider zimmer
ignacio de la vega
luísa cassol pasqualotto
júlia scopel fraga
pedro reichelt
structural and mep engineering
diogo valls
awards
▲
iab-sp award / 2019
▲
single-family residence — unbuilt projects
