CASA DE LATA
▲
EN
at this site, the landscape transforms from the contrasting blue of the sky and the green of the vegetation to the gray days of cold and foggy weather, typical of the region with one of the harshest winters of brazil.
the house is surrounded by a garden that permeates the project and links the built to its natural surroundings. through its courtyard scheme, the project turns the spaces of the residence to an interior garden, which frames and directs the views to the surrounding trees, while ensuring privacy to the internal spaces.
Ñ
en este lugar el paisaje varía desde el contrastante azul del cielo y el verde de la vegetación, hasta el gris y la neblina de los días fríos, típicos de una región que tiene uno de los inviernos más rigurosos de brasil.
la pieza monolítica es envuelta por un jardín que circunda el proyecto y vincula lo construido a su entorno natural. a través de la configuración de casa patio, los espacios íntimos de la residencia se vuelven hacia un jardín interior, que encuadra y direcciona las vistas a los árboles preservados de la cercanía y a la vez garantiza la privacidad de los espacios internos.
PT
neste lugar a paisagem se transforma do contrastante azul do céu e verde da vegetação aos dias cinzas de frio e neblina típicos da região com um dos invernos mais rigorosos do brasil.
a casa é envolvida por um jardim que permeia o projeto e vincula o construído ao seu entorno natural. por meio da configuração de casa pátio, o projeto volta os espaços da residência para um jardim interior, que enquadra e direciona as vistas para as árvores preservadas do entorno, ao mesmo tempo em que assegura privacidade aos espaços internos.

EN
at this site, the landscape transforms from the contrasting blue of the sky and the green of the vegetation to the gray days of cold and foggy weather, typical of the region with one of the harshest winters of brazil.
the house is surrounded by a garden that permeates the project and links the built to its natural surroundings. through its courtyard scheme, the project turns the spaces of the residence to an interior garden, which frames and directs the views to the surrounding trees, while ensuring privacy to the internal spaces.
the program meets the owners’ requirement for a single-story urban house with a large garage to accommodate their simple antique car collection.
Ñ
en este lugar el paisaje varía desde el contrastante azul del cielo y el verde de la vegetación, hasta el gris y la neblina de los días fríos, típicos de una región que tiene uno de los inviernos más rigurosos de brasil.
la pieza monolítica es envuelta por un jardín que circunda el proyecto y vincula lo construido a su entorno natural. a través de la configuración de casa patio, los espacios íntimos de la residencia se vuelven hacia un jardín interior, que encuadra y direcciona las vistas a los árboles preservados de la cercanía y a la vez garantiza la privacidad de los espacios internos.
el programa cumple con los requisitos de la pareja de propietarios: una casa urbana y de
PT
neste lugar a paisagem se transforma do contrastante azul do céu e verde da vegetação aos dias cinzas de frio e neblina típicos da região com um dos invernos mais rigorosos do brasil.
a casa é envolvida por um jardim que permeia o projeto e vincula o construído ao seu entorno natural. por meio da configuração de casa pátio, o projeto volta os espaços da residência para um jardim interior, que enquadra e direciona as vistas para as árvores preservadas do entorno, ao mesmo tempo em que assegura privacidade aos espaços internos.
o programa atende aos requisitos do casal de proprietários: uma casa urbana e térrea com uma ampla garagem para abrigar sua
CASA DE LATA / © FEDERICO CAIROLI
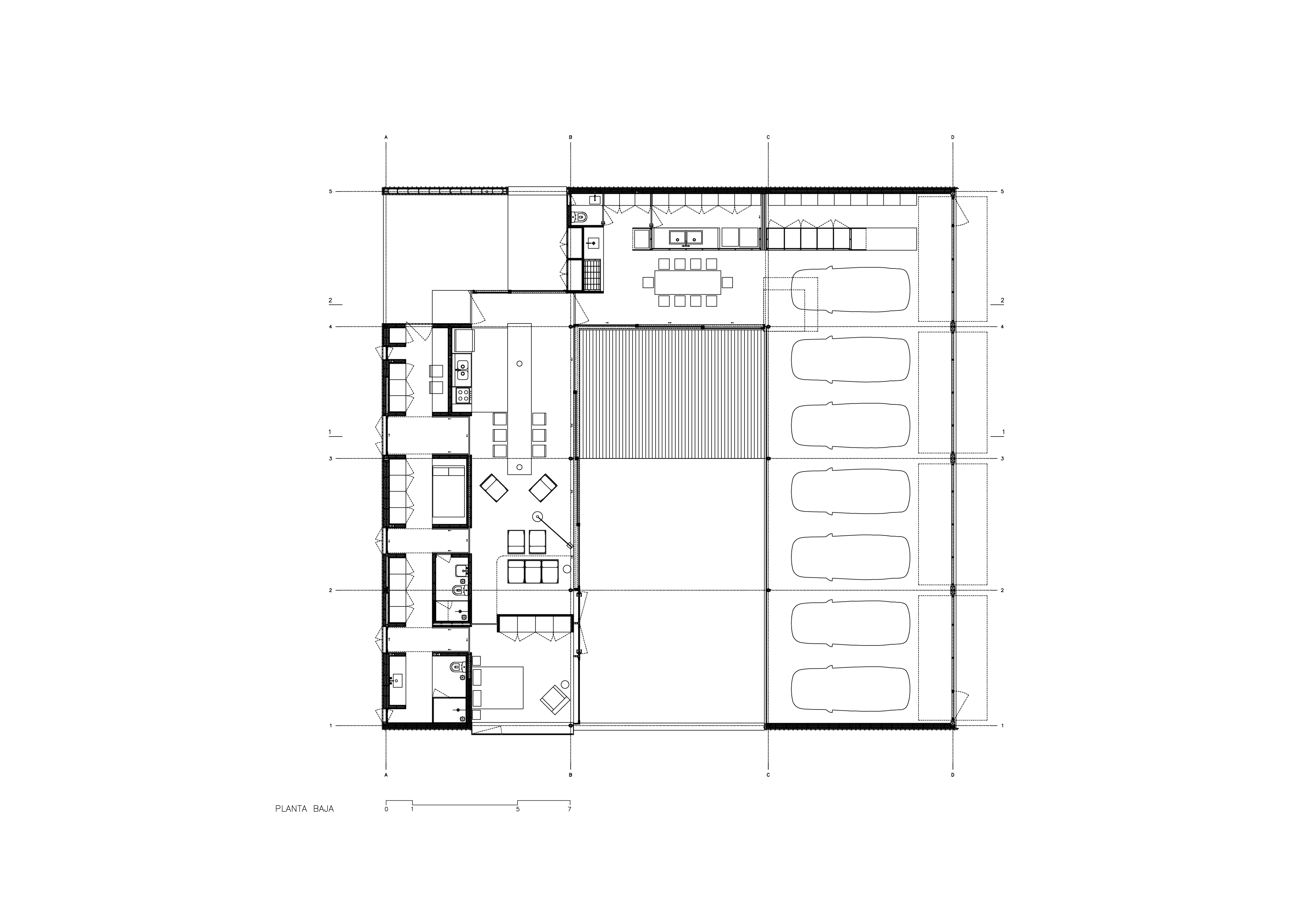
conforming to a single volume, the square plan is divided into three sectors. the two opposite sectors of the same area accommodate on one side the garage and the house on the other, and are articulated by the service areas and the barbecue area that connects to the central patio.
el programa cumple con los requisitos de la pareja de propietarios: una casa urbana y de una sola planta, con un garaje amplio que alberga su sencilla colección de autos antiguos.
conformando un único volumen, la planta cuadrada está dividida en tres sectores. los dos sectores opuestos, de misma área, organizan de un lado el garaje y del otro, la casa, y están articulados por las áreas de servicio y el espacio de parrilla, que se conecta al área externa central.
o programa atende aos requisitos do casal de proprietários: uma casa urbana e térrea com uma ampla garagem para abrigar sua singela coleção de carros antigos.
conformando um único volume, a planta quadrada é dividida em três setores. os dois setores opostos, de mesma área, acomodam de um lado a garagem e do outro, a casa, e estão articulados pelas áreas de serviço e pelo espaço de churrasqueira que se conecta ao pátio central.

CASA DE LATA / © SAUERMARTINS
from the outside, the house presents itself as a closed and austere block and, from the internal patio, it is transformed into transparent and permeable planes, with large windows that integrate house and garden. the patio is translated into an introspective and contemplative space that relates the different sectors of the program. the linear opening in the garage façade allows the framing of the parked cars, integrating them into the area of the residence.
desde el exterior, la casa se presenta como un bloque cerrado y austero, mientras que, a partir del patio interno, se transforma en planos transparentes y permeables, con amplias aberturas que integran la casa al jardín. el patio se convierte en un espacio introspectivo y contemplativo que relaciona los diferentes sectores del programa. la abertura lineal en la fachada del garaje permite un encuadramiento de los autos estacionados, integrándolos al área de la residencia.
desde o exterior, a casa se apresenta como um bloco fechado e austero e, a partir do pátio interno, se transforma em planos transparentes e permeáveis, com amplas janelas que integram casa e jardim. o pátio se traduz em um espaço introspectivo e contemplativo que relaciona os diferentes setores do programa. a abertura linear na fachada da garagem possibilita o enquadramento dos carros estacionados, integrando-os à área da residência.

CASA DE LATA / © SAUERMARTINS
the programmatic organization aims, at the same time, the continuity and fluidity of the domestic areas and the quality of the internal spaces, especially regarding the abundant natural lighting and the broad connection with the outside. each room maintains a unique relationship with the other rooms and with the views from its windows. a series of sliding doors organize and delimit the social and private areas, conforming a large intimate space for the couple’s daily life.
la organización de las funciones domésticas busca, al mismo tiempo, la continuidad y fluidez de los recorridos y la calidad de los espacios internos, sobre todo en lo que se refiere a la abundancia de iluminación natural y a una amplia conexión con el exterior. cada ambiente mantiene una relación única con las demás habitaciones y con las vistas desde sus ventanas. una serie de puertas corredizas organizan y delimitan las áreas sociales y privadas, conformando un amplio espacio íntimo para la vida cotidiana de la pareja.
a organização das funções domésticas busca, ao mesmo tempo, a continuidade e fluidez dos percursos e a qualidade dos espaços internos, em especial no que se refere à abundante iluminação natural e à ampla conexão com o exterior. cada ambiente mantém uma relação única com os demais cômodos e com as vistas de suas janelas. uma série de portas de correr organizam e delimitam as áreas sociais e privadas, conformando um amplo espaço íntimo para o cotidiano do casal.

CASA DE LATA / © SAUERMARTINS
the restricted budget was a determining factor in the definition of the materials and technologies used in the construction, aiming at its viability and reduced maintenance. the project combines a concrete structure for the base [foundations, slabs and fixed furniture] with a metallic structure for the columns and beams of the superstructure. the external walls and the roof receive the same coating in metallic panels, which, together with the main wooden facade, form the monolithic volume
el presupuesto limitado fue un factor determinante para la elección de los materiales y tecnologías utilizadas en la construcción, con vistas a su viabilidad y a un bajo costo de mantenimiento. el proyecto combina estructura de concreto para la base [fundaciones, losas y mobiliario fijo] con estructura metálica para las columnas y vigas de la superestructura. las paredes externas y la cubierta reciben el mismo revestimiento de paneles metálicos, que, en conjunto con la fachada principal en madera, conforman el volumen monolítico.
o orçamento restrito foi um fator determinante na definição dos materiais e tecnologias utilizadas na construção, com vistas à sua viabilidade e reduzida manutenção. o projeto combina estrutura de concreto para a base [fundações, lajes e móveis fixos] com estrutura metálica para as colunas e vigas da superestrutura. as paredes externas e a cobertura recebem o mesmo revestimento em painel metálico, que, em conjunto com a fachada principal em madeira, conformam o volume monolítico.

CASA DE LATA / © FEDERICO CAIROLI


CASA DE LATA / © FEDERICO CAIROLI
CASA DE LATA / © FEDERICO CAIROLI
year
2018
place
canela, rs
authors
cássio sauer, elisa t martins
team
lucas schneider zimmer
ignacio de la vega
eliza hauschild
paula motta
javier guardiola
carolina mottin
mariana fagián
barbara perin remussi
luísa cassol pasqualotto
júlia scopel fraga
photos
structural engineering
filipa abreu
Consultants
José Luiz Canal
publication
150 Best of the Best house Ideas
harpercollins publishers / 2020
awards
▲
project selected to the exhibition yala young architects in latin america during the 16th International Architecture Exhibition - La Biennale di Venezia / 2018
▲
selected among the 20 projects that represent brazil in the XI BIAU bienal iberoamericana de arquitectura y urbanismo by the national committee / 2019
▲
selected among the 20 projects that represent brazil in the 3º Prêmio Oscar Niemeyer / 2020
▲
third place - 6º prêmio saint-gobain de arquitetura – habitat sustentável / 2019
▲
iab-sp award - mixed structure - constructed projects / 2019
▲
exhibitied at the XXI BIENAL PANAMERICANA DE ARQUITECTURAquito, ecuador
+ info